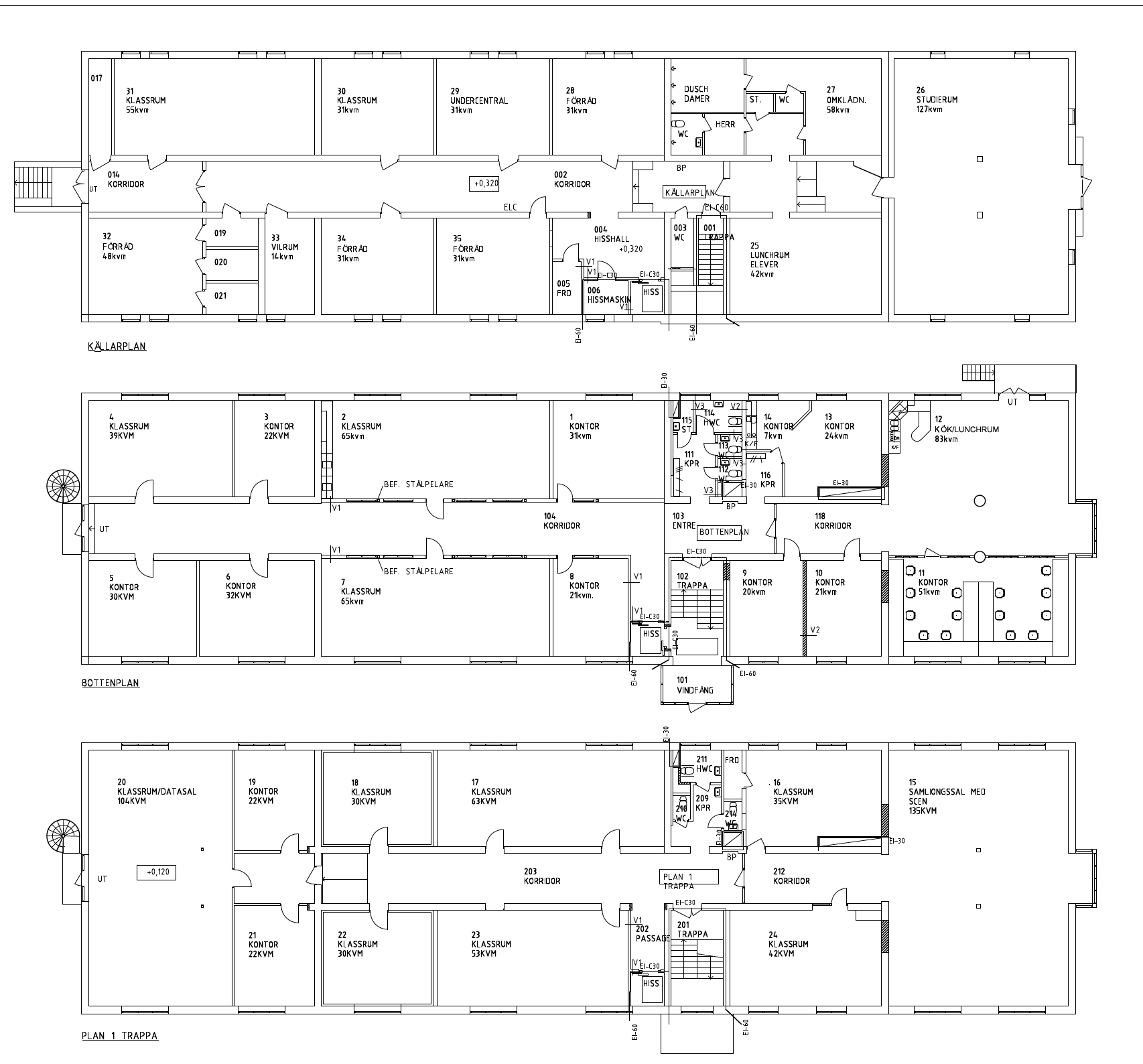
Ca 2000kvm lokal med centralt läge i skövde.
Med direkt närhet till skövde science park, högskolan, centralstationen, stadskärnan med all dess service etc hittar ni dessa ytor.
Lokalerna är anpassningsbara efter verksamhet.
Idag bedrivs utbildningsverksamhet.
En välskött fastighet där löpande underhåll gjorts, öppna ljusa allmänna utrymmen.
Anpassningsbara rum som i nuvarande planlösning är 24-78 kvm.
Hiss
Handikappsanpassat















































