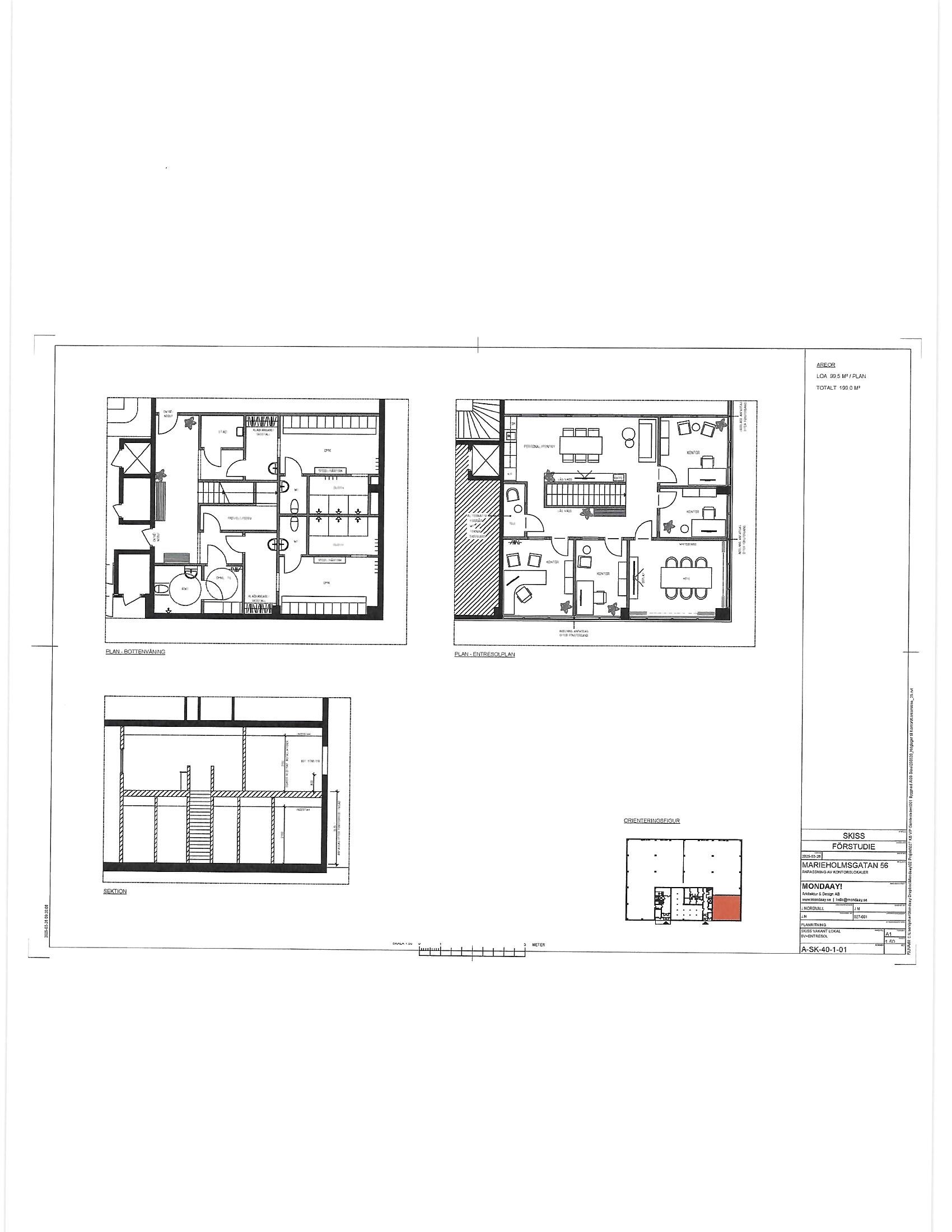
I Marieholm granne med E45 erbjuder vi en kombilokal om totalt ca 615 m2m fördelad på ca 500 m2 lager med 6,5 m i takhöjd och två stora markportar. I denna lagerlokal kan det skapas kontor och personalytor, där varje våningsplan kan bli ca 100 m2. Förslagsvis kontor på vån 1 och personalytor med omklädning på bv. Utanför lagerportarna finns en yta under skärmtak om ca 500 m2.
FAKTA
Stad::Göteborg
Område::Marieholm
Typ av objekt::Lager
Storlek::700
OMGIVNING
Vi erbjuder tjänster inom lokal- och fastighetsförmedling av kommersiella lokaler och fastigheter. Vi har verksamhet i Stockholm, Göteborg, Malmö samt Helsingborg och är en av Sveriges största lokalförmedlare. Med lokalkännedom om olika marknader har vi en unik kunskap om regionala marknaden och kan hyra ut lokaler och sälja kommersiella fastigheter. Vi kan också kostnadsfritt söka lokaler åt lokalsökande företag eller göra marknadsbedömning inför försäljning. Kontakta oss så kan vi presentera våra tjänster och vad vi kan göra för er!
Service
På nära avstånd till lokalen ligger Gamlestaden med allt ni behöver
KOMMUNIKATIONER
Lättillgängligt med bil via de stora lederna samt öppnandet av Marieholmstunneln som sparar dig mycket tid. Finns goda parkeringsmöjligheter och tar inte mer än 10 minuter in till Centralen. Även möjligt att ta sig hit via kollektivtrafik.















